Piping Isometric Drawings: Precision, Clarity, and Efficiency in Industrial Design.
In the world of industrial piping design, clarity and precision are non-negotiable. Whether you’re working on a refinery, chemical plant, power station, or any complex piping system, piping isometric drawings are the backbone of successful execution. These detailed, three-dimensional representations of piping systems are essential for fabrication, installation, and maintenance. At Core Design Center, we specialize in delivering high-quality piping isometric drawings that streamline your project from concept to completion.
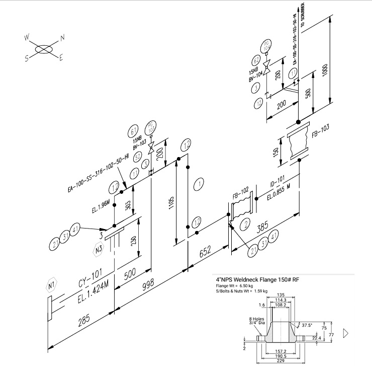
What Are Piping Isometric Drawings?
A piping isometric drawing is a graphical representation of a piping system that shows the pipe in a 3D format, but on a 2D surface. Unlike orthographic drawings, which show views from fixed angles (top, front, side), isometric drawings present the piping layout in a way that mimics how it would appear in real space. This makes it easier for engineers, fabricators, and contractors to visualize the system and understand its dimensions, orientation, and components.
Key features of piping isometric drawings include:
- Exact dimensions of pipes, fittings, valves, and supports
- Bill of materials (BOM) for procurement and fabrication
- Weld locations and joint types
- Flow direction and elevation changes
- Spool breakdowns for fabrication and transport
Why Piping Isometric Drawings Matter
In large-scale industrial projects, even a minor error in piping layout can lead to costly delays, safety risks, and compliance issues. That’s why piping isometric drawings are indispensable—they serve as the single source of truth for everyone involved in the piping process.
Here’s how they add value:
- Improved accuracy: Isometric drawings reduce ambiguity and misinterpretation.
- Efficient fabrication: With clear spool breakdowns and BOMs, fabrication becomes faster and more reliable.
- Simplified installation: Contractors can follow the drawing like a map, minimizing errors on-site.
- Regulatory compliance: Detailed documentation helps meet industry standards and inspection requirements.

Our Expertise in Piping Isometric Services
At Core Design Center, we bring years of experience and cutting-edge software tools to deliver piping isometric drawings that meet the highest standards of quality and precision. Our team of skilled designers and engineers understands the nuances of various industries—from oil & gas to pharmaceuticals—and tailors each drawing to your specific project needs.
We use advanced CAD and 3D modeling software to ensure:
- Accurate representation of complex piping networks
- Seamless integration with P&ID and orthographic drawings
- Quick turnaround times without compromising quality
- Compatibility with fabrication and construction workflows

Whether you need isometric drawings for a greenfield project or modifications to an existing system, we’ve got you covered.
You Might be looking for these:
- Piping isometric drawing services
- 3D piping design
- Industrial piping layout
- Isometric piping diagrams
- Piping fabrication drawings
- Process piping design
Industries We Serve
Our piping isometric services cater to a wide range of industries, including:
- Oil & Gas: Offshore platforms, refineries, and pipelines
- Chemical & Petrochemical: Process plants and storage facilities
- Power Generation: Thermal, nuclear, and renewable energy plants
- Pharmaceuticals: Cleanroom piping and sterile environments
- Food & Beverage: Hygienic piping systems for processing and packaging
Each industry has its own set of standards and challenges, and our team is well-versed in adapting piping isometric drawings to meet those specific requirements.

Deliverables You Can Expect
When you partner with us for piping isometric services, you receive a comprehensive package that includes:
- Detailed isometric drawings in PDF or CAD format
- Bill of materials with part numbers and specifications
- Weld maps and spool drawings
- Revision tracking and change documentation
- Integration with your project management tools
🤝 Why Choose Us?
Choosing the right partner for piping isometric drawings can make or break your project.
- Experienced professionals with domain-specific knowledge
- State-of-the-art software for accurate and efficient design
- Commitment to quality and on-time delivery
- Transparent pricing with no hidden costs
- Responsive support throughout the project lifecycle
- Our Social Presence – LinkedIn
We don’t just deliver drawings—we deliver confidence.
📞 Let’s Get Started.
GET IN TOUCH FOR

![5 Powerful Reasons to Choose Professional Piping Isometric Service 1 piping isometric drawings are the backbone of successful execution. These detailed, three-dimensional representations of piping systems are essential for fabrication, installation, and maintenance. At [Your Company Name], we specialize in delivering high-quality piping isometric drawings that streamline your project from concept to completion.](https://coredesigncenter.in/wp-content/uploads/2025/08/3D-PROCESS-PLANT-DESIGN-1.png)